Kundehistorie

Et hjem med sjæl
– fra gammel charme til ny kærlighed i træ

Der findes steder, der sætter sig fast i hjertet. For Avi og Thoralf er deres grund i Hundested sådan et sted. Med kig ud over vandet og vinden i håret, har netop dette sted været deres fristed gennem 12 år – i et gammelt, charmerende sommerhus, hvor skæve vinkler og slidt træ fortalte historier om både tid og kærlighed.

Men tidens tand havde sat sine spor. Og det blev tydeligt for parret, at en renovering ville kræve en næsten komplet genfødsel. Det var ikke en let beslutning – man river ikke bare minder ned. Men med deres nænsomme tilgang og et blik for både æstetik og fremtid, traf de valget: Et nyt hus skulle bygges. Et, der kunne rumme både nutidens behov og fortidens charme.

Nova Idyll – det perfekte match

Så begyndte rejsen. Og som alt andet hos Avi og Thoralf – grundigt og med omtanke. Udstillingshuse blev besøgt, plancher studeret, og deres research førte dem både til Roskilde og Middelfart udstillingerne. Det var her, midt i inspirationsjunglen, at de første gang trådte ind i Nova Idyll fra Planet Huse – og noget føltes pludselig rigtigt. Faktisk så rigtigt, at de vendte tilbage igen og igen. For hver gang de gik gennem huset, opdagede de nye detaljer, nye løsninger – som små lag, der foldede sig ud i takt med deres drøm.

Men for Avi og Thoralf er et hus ikke bare vægge og tag. Det er også processen og menneskene bag. Derfor læste de anmeldelser, lyttede til erfaringer og – som mange moderne eventyr starter – søgte på Instagram. Her fandt Avi ægte fortællinger fra andre Planet Huse-familier, som gav dem tryghed og tro på, at de var på rette vej.

Et hjem med historie i hver detalje

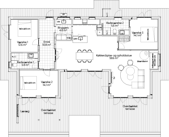
Så blev der tegnet. Et hus tog form – med central gårdhave, store lyse værelser og et rummeligt køkkenalrum, hvor familie og venner kan samles. Og måske vigtigst af alt: De små detaljer, der skulle bevare den stemning, de havde elsket i det gamle hus.

Sprossevinduer, fyrretræsgulve, gamle stikkontakter og tapet med sjæl. Her skulle det ikke føles nyt og fremmed – men som noget, der altid har været.

Byggeprocessen som en fælles rejse

Selve byggeprocessen var en oplevelse i sig selv – og for Avi og Thoralf næsten som en ekstra bonus. Med tidligere erfaring fra projektbyggeri havde de klare forventninger – og de blev indfriet. De fremhæver især projektleder Michelle, der med tålmodighed og grundighed tog sig tid til at forklare og sikre tryghed. Og tømrerne Claus og Peter, der ikke blot byggede et hus, men skabte det med hjerte og håndelag.

Parret gjorde også noget, de varmt anbefaler videre: De besøgte Planet Huses fabrik i Ribe og fulgte deres eget hus blive til – bræt for bræt. Som Avi siger:

“At se sit hus blive samlet og rejst på grunden var en helt særlig oplevelse – det skal man unde sig selv.”

Et fristed med udsigt og ro

I dag står huset færdigt – på præcis samme sted, hvor det gamle stod. Men nu med den luksus, at man ikke længere skal bruge de første fire timer på at lufte ud, feje spindelvæv og gøre rent, før man kan slappe af. Nu åbner man døren – og træder direkte ind i varmen. Både den fysiske og den menneskelige.

Her leves livet. Her er det tilladt, at sokkerne bliver lidt sandede, og at kaffen glemmes på trappetrinnet, mens blikket fortaber sig i horisonten. Parrets søn, Jonathan, trækker også vejret dybere her og nyder at være en del af sommerhushyggen. Her finder han ro, og selvom han ikke er meget aktiv på sociale medier, kan han ikke lade være med at dele gode snapshots fra de hyggelige øjeblikke og stemningsfulde omgivelser.

Som Avi siger det så rammende: “Det er ikke et museum – det er et hjem.” Og selvom de til daglig bor i udlandet, føles det stadig som et lille mirakel, hver gang de vender tilbage:

“Vi kniber os stadig i armen over, at det her hus virkelig er vores.”

Og nu venter sommeren – med åbne døre, lune aftener og endnu flere minder, der bare venter på at blive skabt.

Mød andre familier

Bliv inspireret af andre familier, som fik bygget deres drømmesommerhus med Planet Huse.

Se alle kundehistorier

Pernilles rejse til sit unikke sommerhus

Et nyt sommerhus stod ikke blot som et ønske om et nyt sted at tilbringe ferierne, men som en genopladning af sind og sjæl for Pernille Sams.

Læs kundehistorie

Her leves livet

Sommerhuset i altid vidunderlige Vig bruges flittigt af familien Grønholt. Faktisk hver weekend siden huset blev deres for 1/2 år siden.

Læs kundehistorie

Familien Olesens danske oase

Tina & Johnny havde først tænkt, at de skulle have et sommerhus med et moderne look, men de forelskede sig i et Jeppesen bjælkehus.

Læs kundehistorie